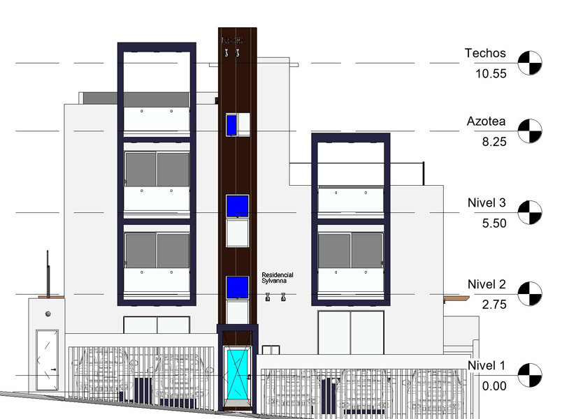
Residencial Sylvanna, Propuesta 03
2021, Residencial Villa España, Santo Domingo Norte, RD
R. Martínez Báez
Arquitectura; Modelado

Proyecto residencial, donde el juego de elementos y luces que coronan la edificación reflejan el expresionismo, el escenario, el realce... como concepto que expresa nuestra cultura contemporánea.

Concepto
Construción
Desarrollo
Proyectos Relacionados