Residencial BIBI I
2019, Calle Primera, Brisa Oriental, Radiante Amanecer, Santo Domingo Oeste.
R. Martínez Báez y equipo
Arquitectura; Modelado; Construcción

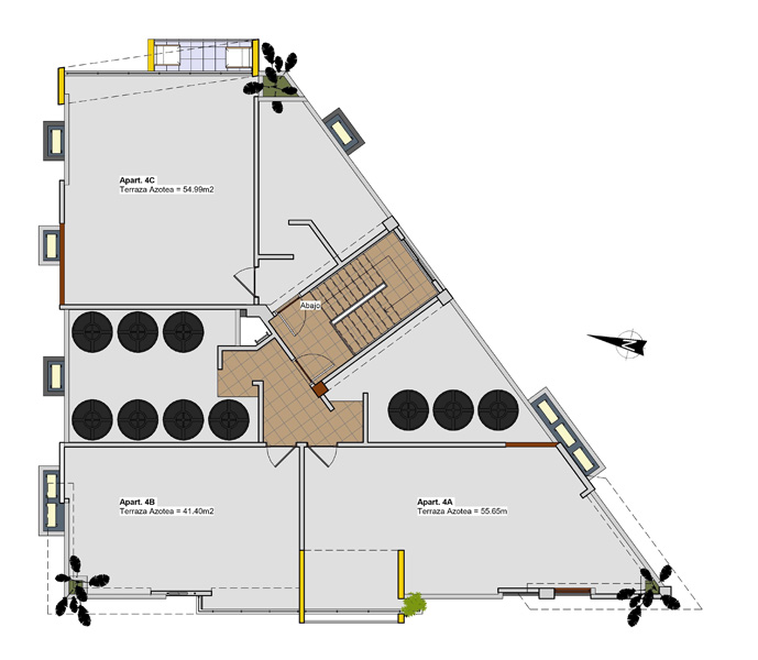
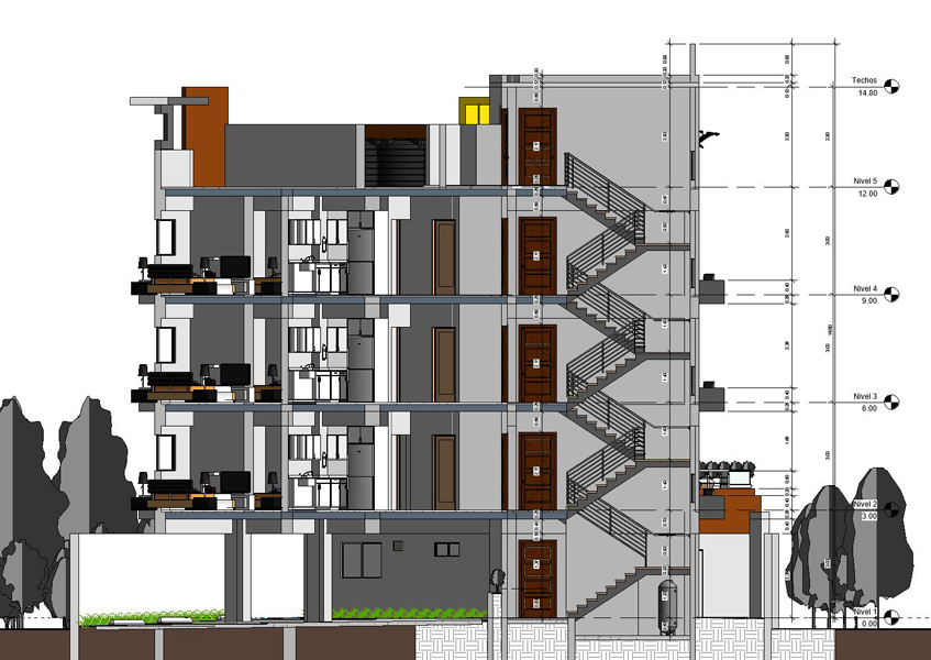
Proyecto de apartamentos de cinco niveles, con amplios y acogedores espacios, en el que se conjuga un entrelace armónico de elementos horizontales y verticales, dando al traste con la obtención de fachadas asimétricas, de visual agradable y de estilo rebuscado.

Lo que pudo ser un obstáculo, a partir de la forma triangular de su terreno, dio paso a una composición totalmente fuera de lo tradicional, logrando gran dinámica y atractivo en sus formas. Proyecto realizado en colaboración con el Ing. José Zacarias.

Concepto
Construción
Desarrollo
Proyectos Relacionados